تسجيل دخول
الاشتراك
اتصل بنا
مقارنة (0)
info@lavida-realty.com
اسألنا عن استفساراتك
0556988666- 0566398888
تواصل معنا اي وقت
الرئيسية
العقارات
للبيع
للايجار
للاستثمار
البرامج العقارية
برنامج التمويل السكني
برنامج سوقلي العقاري
برنامج أملاكي العقاري
برنامج البناء الذاتي
برنامج فرصة العقاري
برنامج إيجار العقاري
الاخبار
حول لافيــــدا
حول لافيــــدا
كلمة الرئيس التنفيذي
اتصــل بنا
الرئيسية
العقارات
مشروع أغادير السكني - P95
للبيع
شقة
مشروع أغادير السكني - P95
جدة - حي الفيصلية
6
اجمالي الغرف
3
حمامات
183
المساحة
830,000 ريـال
4,535.52 \ المتر
مفضلة
مقارنة
مشاركة
تفاصيل العقار
المساحة
183 متر مربع
الموقع
جدة / حي الفيصلية
الحالة
للبيع
سنة الانشاء
2023
التكييف
اسبلت تأسيس فقط
الارضيات
باركيه + رخام
الواجهات
حجر + جرافيتو + بانوراما
التشطيب
سوبر ديلوكس
اجمالي الغرف
6
غرف النوم
3
الحمامات
3
عدد الصالات
1
عدد المطابخ
1
مجالس رجال
1
مجالس نساء
1
غرفة طعام
1
المميزات
غرفة غسيل او خادمة
غرفة سائق
خزان مستقل علوي
خزان مستقل أرضي
مواقف
مصعد
تصميم الادوار
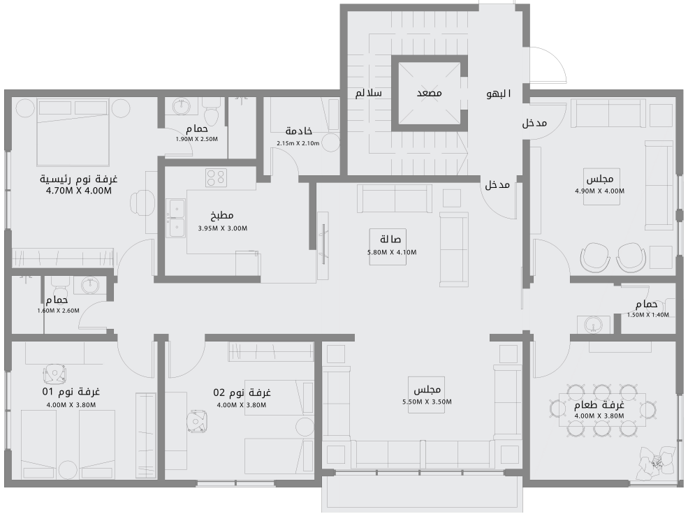
مخطط شقة ( 6 غرف )
المساحة : 183 م
مخطط الشقة الروف (4 غرف)
مساحة الشقة : 138.6 م
مساحة السطح : 44.73 م
اقرب الاماكن
1
1 دقيقة
مدرسة خالد بن الوليد
2
2 دقيقة
شارع صاري
3
3 دقائق
طريق المدينة المنورة
4
5 دقائق
جامعة جدة
5
7 دقائق
عزيز مول
الضمانات
1
25 سنة
الأفياش الكهربائية من شركة New Power
2
10 سنوات
أعمال الهيكل الانشائي
3
سنة واحدة
أعمال السباكة والكهرباء الداخلية
4
سنة واحدة
أعمال تأسيس التكييف السبليت
5
سنة واحدة
أعمال العزل المائي والحراري
6
سنة واحدة
أعمال السباكة والكهرباء الخارجية
7
سنة واحدة
أعمال شبابيك الألمنيوم
8
سنة واحدة
أعمال الأبواب الحديدية
9
سنة واحدة
أعمال الأبواب الخشبية
الموقع على الخريطة
فتح الاتجاهات
مؤجر بالكامل
اضافة للمفضلة
عرض التفاصيل
مقارنة
الفيصلية P64
24,000
النوع
شقة
الموقع
حي الفيصلية
المساحة
100 متر مربع
مؤجر بالكامل
اضافة للمفضلة
عرض التفاصيل
مقارنة
المشرفة م- 65
النوع
شقة
الموقع
حي مشرفة
المساحة
100 متر مربع
مؤجر بالكامل
اضافة للمفضلة
عرض التفاصيل
مقارنة
Nawasi Sky
150,000
النوع
شقة
الموقع
ابحر الجنوبية
المساحة
240 متر مربع
مؤجر بالكامل
اضافة للمفضلة
عرض التفاصيل
مقارنة
دار الصفاء م-120
60,000
النوع
شقة
الموقع
حي الصفا
المساحة
200 متر مربع
مباع بالكامل
اضافة للمفضلة
عرض التفاصيل
مقارنة
الروضة م-59
النوع
شقة
الموقع
حي الروضة
المساحة
185 متر مربع
مباع بالكامل
اضافة للمفضلة
عرض التفاصيل
مقارنة
السلامة م-60
النوع
شقة
الموقع
حي السلامة
المساحة
130 متر مربع
مباع بالكامل
اضافة للمفضلة
عرض التفاصيل
مقارنة
النزهة م-48
النوع
شقة
الموقع
حي النزهه
المساحة
130 متر مربع
مباع بالكامل
اضافة للمفضلة
عرض التفاصيل
مقارنة
الورود - 136
النوع
شقة
الموقع
حي الورود
المساحة
220 متر مربع
شركة دار حياة الاسكان العقارية - لافيدا
مهتمون بـ عرض عقاراتك في موقعنا الالكتروني
تواصــــل معـنا
راسلنا على الواتس